| Leistungsphasen | 1 bis 5 |
| Standort | Hamburg |
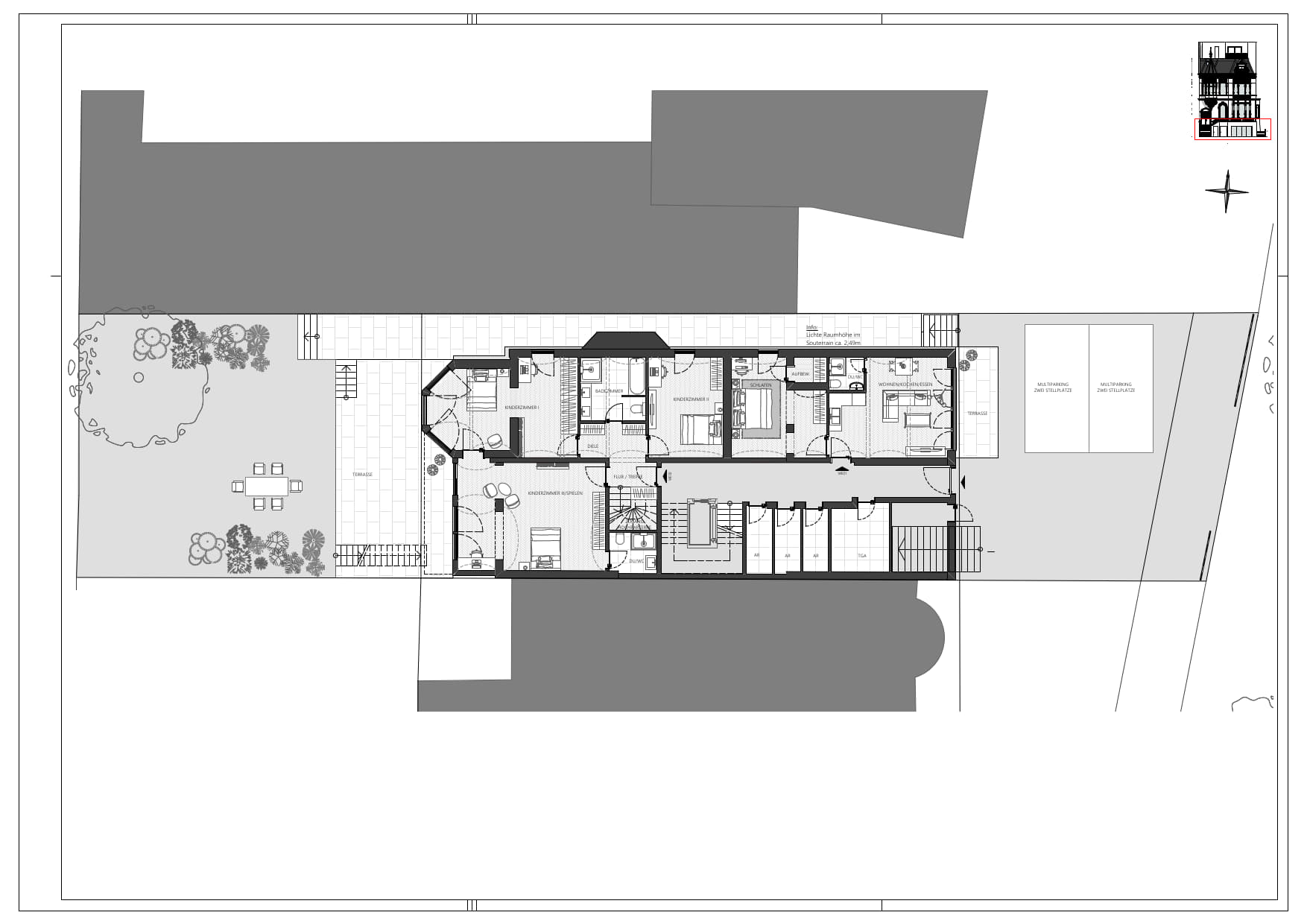
| Funktion | Umnutzung zu einem Mehrfamilienhaus |
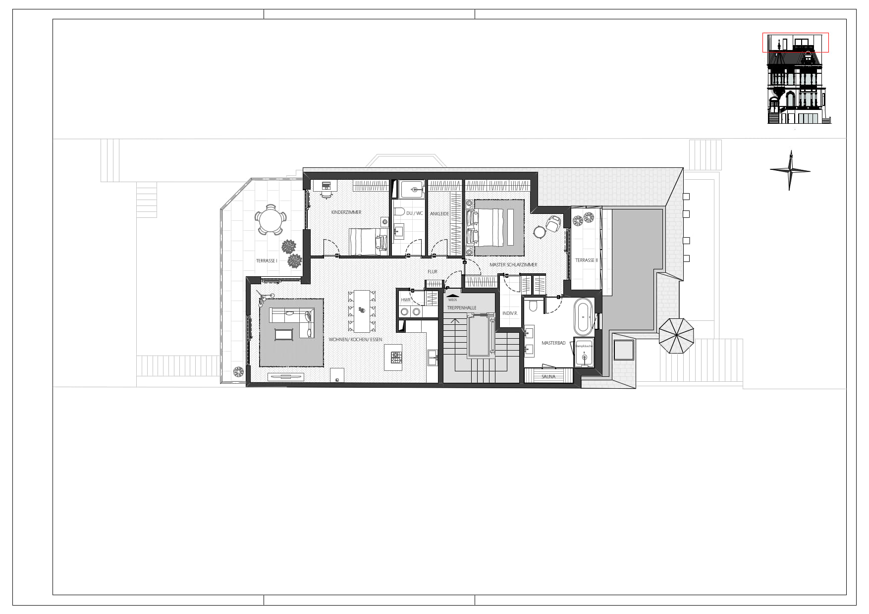
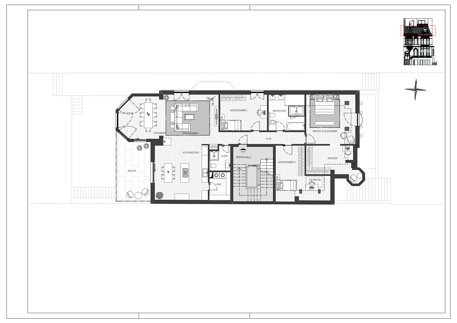
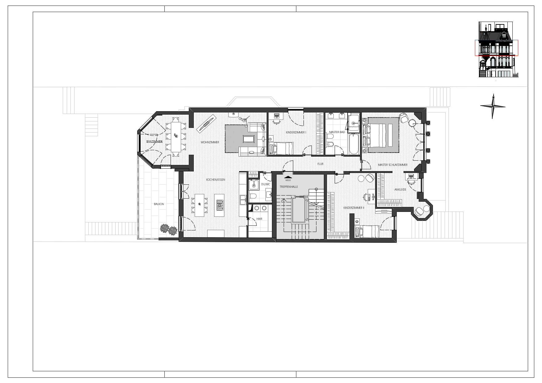
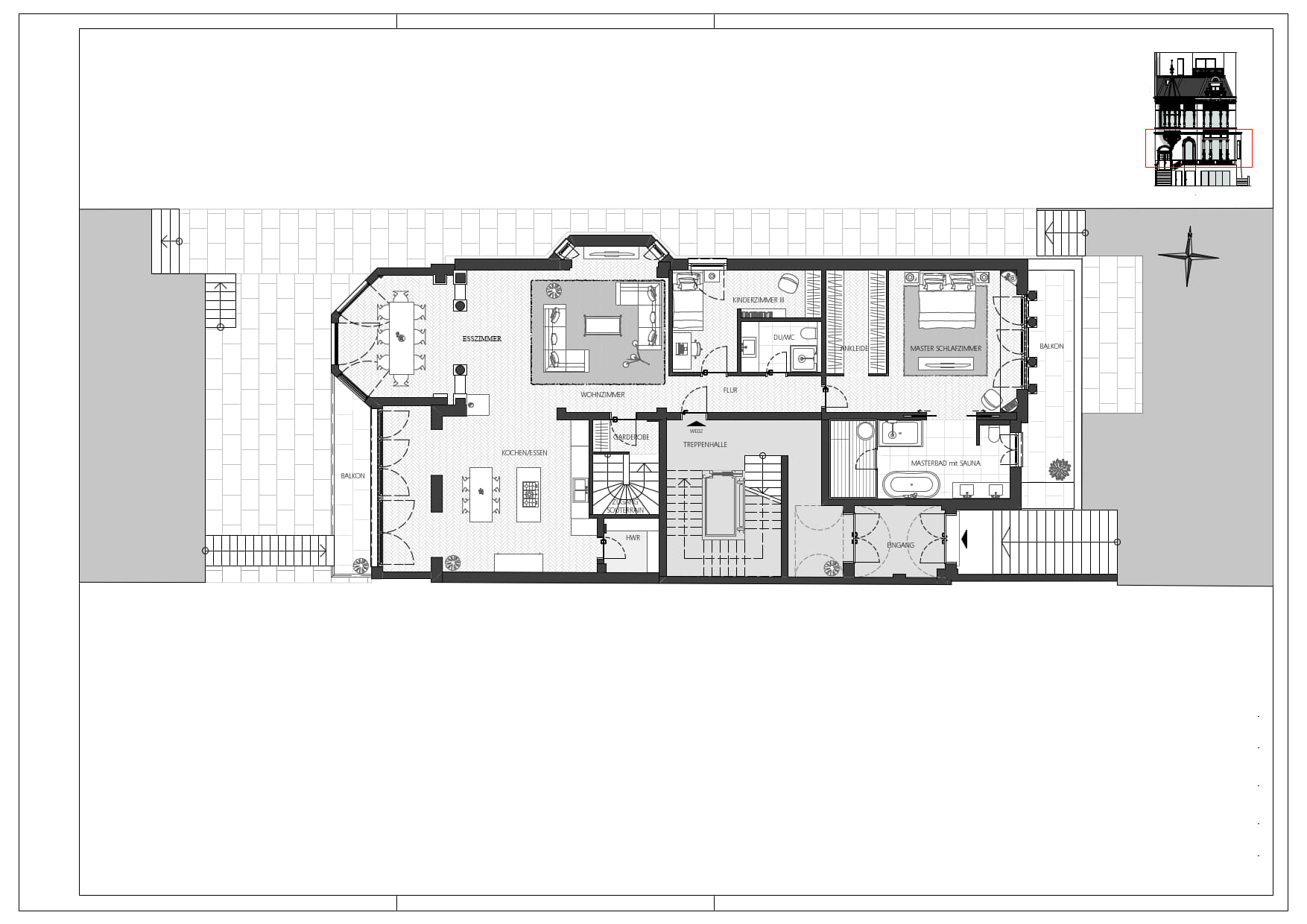
Die historisch wertvolle Villa am Mittelweg, einer der Hamburger Top-Lagen, diente der Schönheitschirurgie, sowie Büroflächen und einer Nutzerwohnung. Die Nutzung wurde aufgegeben.
Mit unserem Auftraggeber wurde die Nutzung als Geschosswohnungsbau entwickelt. Es entstanden 4 luxuriöse Wohnungen mit modernen und frischen Grundrissen, wobei die historische Fassade im Zuckerbäckerstil erhalten blieb.










